Prominente Bestlage München am Siegestor: Helle Wohnung zum späteren Selbstbezug

80802 München / Schwabing, Etagenwohnung zum Kauf

Referenz

Dieses Objekt wurde bereits erfolgreich vermittelt.

Objekt­beschreibung

Beschreibung

In diesen Zeiten geht es vor allem um eines: Lage.
Besser könnte die Lage dieser Wohnung nicht sein. In der bekannten Leopoldstraße am Siegestor finden Sie in der dritten Etage eines sehr gepflegten Wohn- und Geschäftshauses die von uns angebotene Wohnung.
Auf einer Wohnfläche von etwa 126m2 verteilen sich 4 wunderschöne lichtdurchflutete Zimmer.

Das Objekt ist zurzeit noch als Arztpraxis genutzt.
Da diese schon vor Inkrafttreten der Zweckentfremdungssatzung als Praxis genutzt wurde, ist eine solche Konstellation im Wohnraum möglich. Die Wohnung ist ansonsten reiner Wohnraum.
Der gewerbliche Mietvertrag läuft noch bis zum 31.03.2026.
Die Jahresnettomiete beträgt zurzeit 60.000,00€ und wird über einen Staffelmietvertrag auf 69.000,00€ ansteigen.
Somit ist die Wohnung spätestens in etwa 4 Jahren für den Eigenbedarf nutzbar.
Bis dahin ist eine ordentliche Rendite realisierbar.

Ausstattung

In diesem exklusiven Haus in Bestlage Münchens befindet sich diese traumhafte Wohnung in der dritten Etage, die sie bequem über einen Aufzug erreichen.
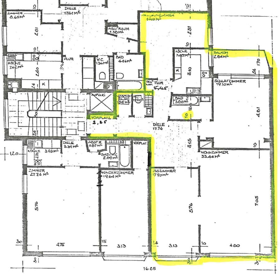
Der großzügige Grundriss lässt viele Varianten der Nutzung zu. Ob eine großzügige Nutzung als 4- Zimmer Wohnung, oder die luxuriöse Variante mit einer 3 Zimmer Wohnung, bei der allein das Wohnzimmer eine Fläche von ca. 60qm aufweisen würde; Sie entscheiden. (siehe Grundriss lt. Teilungserklärung)
Im Moment verfügt die Wohnung über zwei separate WCs, ein Bad, eine Teeküche, vier Behandlungszimmer, einen Abstellraum und einem Balkon. (siehe Grundriss aktuelle Nutzung) Zur Wohnung gehört ein Kellerabteil.

Das Haus ist gepflegt und stets top in Schuss gehalten.

Sonstiges

Wir freuen uns, Ihnen dieses Objekt bei einem Besichtigungstermin ausführlich vorzustellen. Aus rechtlichen Gründen bitten wir Sie, für Ihre erste Kontaktaufnahme mit uns das Kontaktformular des Portals zu nutzen, auf dem Sie diese Immobilie gefunden haben.

Finestep bietet dieses Objekt provisionspflichtig zum Kauf an.
Für die vom Eigentümer übernommenen Objektdaten übernimmt Finestep keine Gewähr in Bezug auf die Vollständigkeit, Richtigkeit und Aktualität dieser Informationen. Irrtum und Zwischenverkauf ist vorbehalten. Die Käuferprovision in Höhe von 3,57 % inkl. 19 % USt. ist verdient und fällig mit Beurkundung des notariellen Kaufvertrages. Der Immobilienmakler hat einen provisionspflichtigen Maklervertrag mit dem Verkäufer in gleicher Höhe abgeschlossen.

Ist Ihnen das von Finestep nachgewiesene Objekt bereits bekannt, ist dies Finestep schriftlich spätestens innerhalb von fünf Werktagen unter Nennung der Quelle und des Nachweisdatums mitzuteilen. Sämtliche Unterschriften und Mitteilungen haben auch bei Übermittlung per Telefax und E-Mail Ihre Rechtsgültigkeit. Als Gerichtsstand wird München vereinbart sowie die Anwendung Deutschen Rechts.

Der Nachweis dieses Objekts ist ausschließlich für Sie persönlich bestimmt. Eine unberechtigte Weitergabe an Dritte ist daher nicht gestattet. Sollte eine weitere Person aus Ihrem Kreis ebenfalls Interesse an dem Objekt zeigen, teilen Sie uns dies bitte mit. Gerne werden wir ein eigenes, persönliches Angebot zusenden.

Die hier eingestellten Flächenangaben sind mit größter Sorgfalt recherchiert, erheben jedoch nicht den Anspruch auf Alleingültigkeit und werden lediglich unverbindlich zu Informationszwecken zur Verfügung gestellt.

Alle Angaben nach bestem Wissen und nach Angabe des Verkäufers. Irrtum und Zwischenverkauf vorbehalten. Dieses Exposé ist eine Vorabinformation, als Rechtsgrundlage gilt allein der notariell abgeschlossene Kaufvertrag.

Lage

Exklusiver und zentraler geht es kaum. Wer München sagt, meint unter anderem das Siegestor, den englischen Garten, den RUNNING MAN und die Leopoldstraße.

Der englische Garten befindet sich fast direkt vor der Haustür. Die vielen Straßencafés und Restaurants der Leopoldstraße sind weltbekannt. Im Nachbarhaus der Münchner Rück sehen Sie den RUNNING MAN in voller Größe.
Die U- Bahn Station Giselastrasse (U3/U6) ist direkt vor dem Haus zu erreichen.
Lassen Sie sich bei einem Besichtigungstermin von der Lage und dem Objekt überzeugen. Wir freuen uns auf Sie.

Immobiliendaten-Import und Darstellung für WordPress: WP-ImmoMakler®

Unsere Finanzierungspartner helfen Ihnen Ihr Wunschobjekt zu finanzieren.

Energieeffizient Bauen und Sanieren

Ob Haus oder Wohnung, Bau oder Kauf: Wir unterstützen Sie auf dem Weg in die eigenen vier Wände.

Ihr Spezialist für Baufinanzierung

Wir vergleichen für Sie über 400 Banken und Bausparkassen und bieten Ihnen die besten Konditionen für eine optimale Finanzierung.

Genau mein Zuhause

Individuell, effizient und hochwertig – Hanse Haus baut dank zahlreichen Planungs- und Ausstattungsoptionen genau Ihr Zuhause.

Objekte in der Region München und Südostoberbayern zum Kauf

Immobilienangebote speziell für die Region

Als Immobilienmakler für die Region München und Südostoberbayern bedienen wir speziell Stadt und Landkreis München, Wasserburg am Inn und den Landkreis Rosenheim. Informieren Sie sich über unsere regionenspezifischen Angebote!