Exklusive und kernsanierte Altbau-Wohnung mit Südterrasse am Maßmannpark – Münchens Maxvorstadt

80333 München / Maxvorstadt, Etagenwohnung zum Kauf

Referenz

Dieses Objekt wurde bereits erfolgreich vermittelt.

Objekt­beschreibung

Beschreibung

Ein Zuhause, das Geschichte atmet und Zukunft verspricht

In einem prachtvollen Neurenaissance-Anwesen aus dem Jahr 1897, direkt am idyllischen Maßmannpark, vereint diese außergewöhnliche Wohnung auf rund 150 Quadratmetern die zeitlose Schönheit historischer Baukunst mit den Annehmlichkeiten modernen Wohnens. Bereits beim Eintreten spüren Sie eine Atmosphäre, die den Charme vergangener Epochen mit höchster handwerklicher Qualität in jeder Einzelheit verbindet.

Die bis zu drei Meter hohen Decken sind mit kunstvoll restauriertem Originalstuck versehen, der feine Friese und Rosetten zeigt, während edles Eichen-Fischgrätparkett für ein authentisches und zugleich repräsentatives Raumgefühl sorgt. Originale Kassettentüren, sorgfältig aufgearbeitet, tragen wertvolle Messingbeschläge und Füllungen aus historischem Sternchenglas. Großzügige Sprossenfenster mit aufwendig gearbeiteten Holzrahmen öffnen den Blick ins satte Grün des Maßmannparks und fluten die Räume mit natürlichem Tageslicht.

Das Herzstück der Wohnung ist das lichtdurchflutete Wohnzimmer mit elegantem Erker, das sowohl repräsentative Weite als auch behagliche Wohnlichkeit vermittelt. Hier sorgt ein Kaminofen des deutschen Herstellers Leda, mit gusseisernem Korpus und Glasfront, an kühleren Tagen für angenehme Wärme und ein stimmungsvolles Ambiente. Über eine in die Wand integrierte Schiebetür gelangt man in ein angrenzendes Zimmer, das sich ebenso stilvoll als Essbereich wie als Bibliothek oder privates Arbeitszimmer nutzen lässt. Möglichkeiten, dieses Zimmer über eine eigene und private Zimmertüre zu erschließen sind vorhanden.

Die maßgefertigte Wohnküche von Dross & Schaffer ist ein Statement moderner Küchenarchitektur. Grifflos mit Tip-on und in seidenmatter Pandomo-Oberfläche gehalten, fügt sie sich harmonisch in den Raum ein. Hochwertigste Geräte – darunter ein Backofen mit Wärmeschublade, ein Dampfgarer und ein Kühlschrank und ein Gefrierschrank von Miele, eine voll integrierte Geschirrspülmaschine von Gaggenau sowie ein Bora Pure Induktionskochfeld mit integriertem Muldenabzug – erfüllen höchste Ansprüche an Funktionalität und Design. Ein Avintage Weinklimaschrank mit zwei Temperaturzonen, freistehende Sitzbank mit Lederpolsterung, Apothekerschrank, ein flächenbündiges Edelstahlspülbecken und ein wandbündiges Gläserregal mit Holzsprossentüren unterstreichen die Exklusivität. Dezent integrierte LED-Beleuchtung setzt sowohl Arbeitsflächen als auch handwerkliche Details in Szene.

Die beiden Schlafzimmer verfügen über denselben kunstvollen Stuck wie die Haupträume – mit detailreichen Friesen, Rosetten und dem charakteristischen Eichen-Fischgrätparkett, das den Räumen einen durchgehend harmonischen Charakter verleiht.

Das Hauptbadezimmer inszeniert romantischen Vintage-Charme mit zeitloser Eleganz: Auf warmem Eichen-Dielenparkett steht eine freistehende Wanne als souveräner Mittelpunkt. Zwei Waschtische mit feinen Keramikbecken werden von historisierenden Armaturen von Devon & Devon in poliertem Chrom akzentuiert; Wandleuchten rahmen die Doppelspiegel und setzen ein weiches, schmeichelndes Licht. Ein raumhoher Spiegelschrank bietet stilvollen Stauraum, während der Handtuchheizkörper ebenfalls von Devon & Devon wohltuende Wärme spendet. Die Wände sind mit einer fein gemusterten, eleganten Tapete aus England versehen, deren sanfte Farbnuancen perfekt mit den warmen Holztönen und dem Chromglanz harmonieren. Das Zusammenspiel dieser Elemente schafft eine weiche, einladende Atmosphäre, die Behaglichkeit und luxuriöse Raffinesse in vollkommener Balance vereint.

Das zweite Badezimmer ist im maurischen Stil gehalten und beeindruckt mit handgefertigten portugiesischen Zementfliesen von Mosaic del Sur, die farblich akzentuierte Muster setzen. Eine großzügige Walk-in-Dusche mit Glasabtrennung und einem Flusskiesel-Beton-Wandfinish sorgt für einen dezent natürlichen Akzent. Hochwertige Messingarmaturen ergänzen die kunstvoll geformte Kohler-Waschschale, deren elegante Linienführung und seidige Keramikoberfläche einen stilistischen Mittelpunkt bildet. Eine elektrisch geregelte Fußbodenheizung rundet den Komfort ab.

Ein separater Technikraum mit Stauraum für Haushaltsgeräte und Anschluss für Waschmaschine und Trockner ergänzt die Ausstattung auf praktische Weise.

Die rund 23 Quadratmeter große Südterrasse mit langlebigem Bankirai-Holzbelag, Wasseranschluss und stimmungsvoller Beleuchtung erweitert den Wohnbereich ins Freie und bietet einen geschützten Ort für sonnige Stunden oder laue Sommerabende – umgeben von einer wohltuenden Ruhe, die man in dieser Lage nur selten findet.

Diese erlesene Altbau-Wohnung verbindet den Zauber historischer Architektur mit der Präzision feinster Handwerkskunst und der Souveränität zeitgemäßer Ausstattung. Jeder Raum erzählt seine eigene Geschichte, und doch fügen sich alle zu einem harmonischen Ganzen, das weit über reines Wohnen hinausgeht – es ist ein Lebensgefühl, das man spürt, sobald man die Tür öffnet.

Unsere angezeigten Bilder der Wohnung sind ohne KI erstellt worden und zeigen genau den aktuelll von uns mit einem Homestaging versehen Zustand.

Wir freuen uns, Ihnen diesen außergewöhnlichen Altbaujuwel persönlich im Rahmen eines Besichtigungstermines vorstellen zu dürfen!

Ausstattung

IHRE AUSSTATTUNG IM ÜBERBLICK:

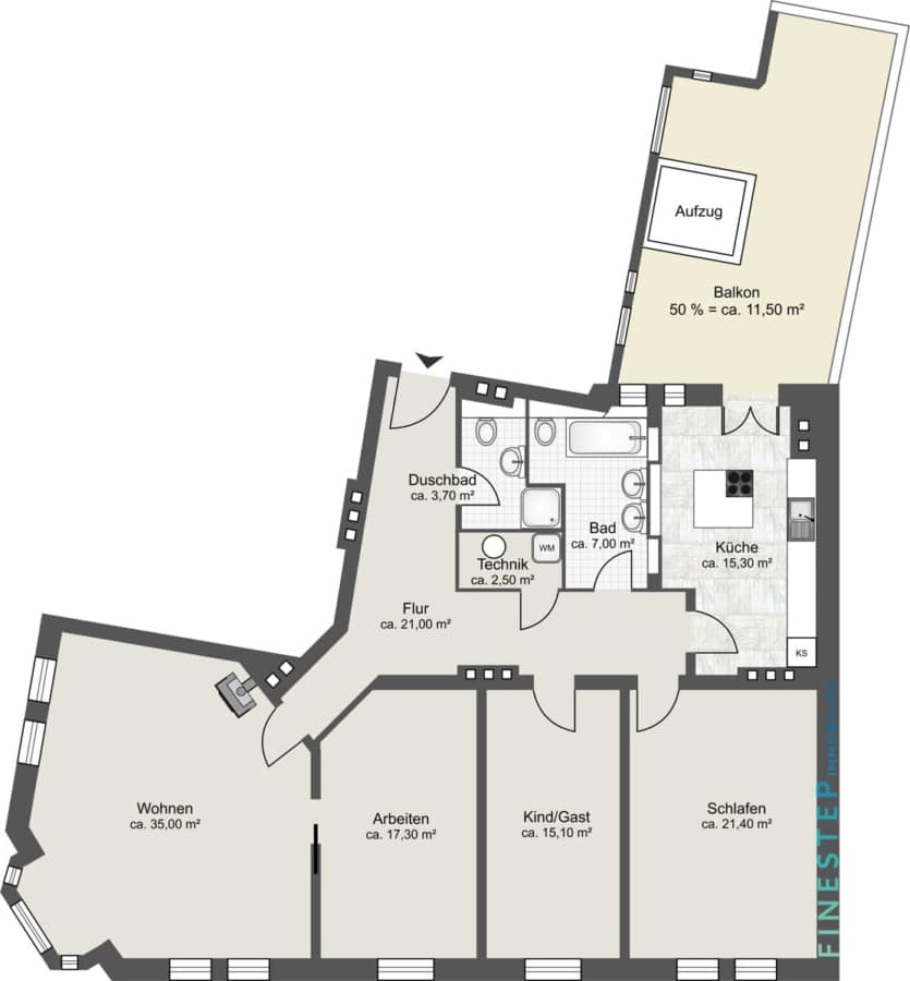
  • offizielle Wohnflächenberechnung mit 149,8m² reiner Wohnfläche
  • 23m² große und geschützte, ruhige Südterrasse zum Innenhof
  • Historisches Einzeldenkmal (AfA Abschreibungen)
  • Repräsentatives Eckhaus im Stil der Neurenaissance, einer architektonischen Epoche, die sich durch elegante und kunstvolle Gestaltungselemente auszeichnet.
  • Kernsaniert im Jahr 2015, weitere Modernisierungsmaßnahmen 2022
  • Großzügige Raumhöhen bis ca. 3,00 m in Wohn- und Schlafräumen
  • Prachtvoller Deckenstuck mit breiten umlaufenden Friesen und zentralen Rosetten in Wohn- und Schlafzimmern
  • Kaminofen mit Sichtfenster von Leda Antigua mit 9 kW Wärmeleistung
  • Historische Elemente wie Porzellan Wipp- und Drehschalter sowie Steckdosen (Replicata)
  • Exklusive Leuchten (Kronleuchter von Ingo Maurer, Casalumi)
  • Edle Tapeten aus England
  • Original erhaltene Innentüren mit Sterncheneinsätzen und Messingbeschlägen
  • Daybed-Einbau im Erker
  • Bodenbeläge: Original-Eichen-Fischgrätparkett mit hohen weißen Sockelleisten in Diele, Wohn- und Schlafräumen, 2015 verlegtes Eichendielenparkett in Bad und Küche; handgefertigte portugiesische Zementfliesen im Duschbad
  • Masterbad im eleganten Vintage-Stil: freistehende Wanne, Doppelwaschtisch mit nostalgischen Armaturen (Devon & Devon), Glasablagen, Handtuchheizkörper, Spiegel- und Wandbeleuchtung, raumhoher Spiegelschrank
  • Duschbad mit Fußbodenheizung, Dusche mit Flusskieselbetonwand, Waschtisch mit eingelassener Kohler-Waschschale und WC
  • Fenster: Holz, innen mattweiß lackiert, 3-fach-verglast
  • Südterrasse: langlebiger Bankirai-Holzbelag, Wasseranschluss, Beleuchtung, schaltbare Außensteckdose
  • Küche Dross & Schaffer: Freistehender Kochblock mit grifflosen Fronten (Tip-on), Pandomo-Oberflächen, Induktionskochfeld mit Bora-Muldenabzug, Backofen, Dampfgarer, Wärmeschublade, Kühl-Gefrier-Kombination von Miele, Gaggenau-Geschirrspüler, Avintage-Weinklimaschrank, Apothekerschrank, Edelstahlspüle, Arbeitsflächenbeleuchtung, ledergepolsterte Sitzbank, beleuchtete Wandnische mit Glasboden, wandbündiges Gläserregal mit Glastüren
  • Technikraum mit Stauraummöglichkeiten, sowie Anschluss für Waschmaschine und Trockner
  • Kellerabteil

u.v.m.

Sonstiges

Wir freuen uns, Ihnen dieses Objekt bei einem Besichtigungstermin ausführlich vorzustellen. Aus rechtlichen Gründen bitten wir Sie, für Ihre erste Kontaktaufnahme mit uns das Kontaktformular des Portals zu nutzen, auf dem Sie diese Immobilie gefunden haben. Finestep bietet dieses Objekt provisionspflichtig zum Kauf an. Für die vom Eigentümer übernommenen Objektdaten übernimmt Finestep keine Gewähr in Bezug auf die Vollständigkeit, Richtigkeit und Aktualität dieser Informationen. Irrtum und Zwischenverkauf ist vorbehalten. Die Käuferprovision in Höhe von 2,98% inkl. 19% USt. ist verdient und fällig mit Beurkundung des notariellen Kaufvertrages. Ist Ihnen das von Finestep nachgewiesene Objekt bereits bekannt, ist dies Finestep schriftlich spätestens innerhalb von fünf Werktagen unter Nennung der Quelle und des Nachweisdatums mitzuteilen. Sämtliche Unterschriften und Mitteilungen haben auch bei Übermittlung per Telefax und E-Mail Ihre Rechtsgültigkeit. Als Gerichtsstand wird München vereinbart sowie die Anwendung Deutschen Rechts. Alle Angaben nach bestem Wissen und nach Angabe des Verkäufers. Irrtum und Zwischenverkauf vorbehalten. Dieses Exposé ist eine Vorabinformation, als Rechtsgrundlage gilt allein der notariell abgeschlossene Kaufvertrag Finestep Immobilien GmbH Humboldtstr. 8 81543 München http://www.finestep.de

Lage

Eingebettet in eine der begehrtesten, familienfreundlichen Lagen Münchens entfaltet sich ein Zuhause, das Harmonie, Exklusivität und Geborgenheit auf höchstem Niveau vereint. Die kleine, erlesene Hausgemeinschaft von nur 19 Parteien – überwiegend Eigennutzer – sorgt mit viel Liebe zum Detail für ein gepflegtes Ambiente und verleiht dem Anwesen eine unverwechselbare persönliche Note.

Hier verschmelzen stilvolle Architektur und ein spürbares Wohlgefühl zu einem Ort, der nicht nur bewohnt, sondern gelebt wird – ein Zuhause mit Charakter, das Menschen anspricht, die Wert auf Lebensqualität, Diskretion und eine besondere Atmosphäre legen.

Ein Highlight ist der Blick in den idyllischen Maßmannpark – eine grüne Oase, die 2009 nach den Ideen der Anwohner umfassend neugestaltet wurde. Weitläufige Liegewiesen, ein Rodelhügel sowie vielseitige Sport- und Spielflächen machen ihn zu einem beliebten Treffpunkt und familienfreundlichen Rückzugsort mitten in der Stadt.

Die unmittelbare Umgebung überzeugt mit exzellenter Infrastruktur: Geschäfte des täglichen Bedarfs, eine große Auswahl an Restaurants mit regionaler und internationaler Küche, sowie private und städtische Kinderbetreuungseinrichtungen und Schulen befinden sich in komfortabler Nähe.

Mitten in der Maxvorstadt gelegen, vereint diese Adresse die kulturelle Strahlkraft Münchens mit wohltuender Ruhe. Das renommierte Kunstareal mit Alten und Neuen Pinakothek, Glyptothek und Museum Brandhorst liegt ebenso fußläufig wie charmante Cafés, Boutiquen und Galerien. Hier trifft Kunst auf urbanes Leben, akademische Tradition auf zeitgenössische Szene – LMU, TU und die Kunstakademie sind nur wenige Schritte entfernt.

Trotz dieser Lebendigkeit bietet das Viertel stille Oasen: historische Straßen, alter Baumbestand und die Nähe zum Englischen Garten verleihen dem Quartier eine grüne Gelassenheit. Dank idealer Verkehrsanbindung – mit U-Bahn-Stationen wie Theresienstraße, Universität oder Josephsplatz – ist der Flughafen in etwa 40 Minuten erreichbar.
Diese Lage verbindet städtischen Puls mit Rückzugsmöglichkeiten – und bietet damit eine Wohnqualität, die ebenso selten wie begehrt ist.

Öffentlicher Nahverkehr
- U-Bahn Theresienstraße (Linien U2, U8): ca. 300 m
- Tram Sandstraße (Linien 20, 21, 29, N20): ca. 300 m
- Bus Stiglmaierplatz: ca. 500 m
- U-Bahn Stiglmaierplatz (Linien U1, U7): ca. 550 m

Points of Interest
- Maßmannpark: ca. 50 m
- Pinakotheken: ca. 800 m
- Königsplatz: : ca. 900 m

Täglicher Bedarf
- Bäckerei: ca. 250 m
- Supermarkt: ca. 250 m
- Apotheke: ca. 280 m

Immobiliendaten-Import und Darstellung für WordPress: WP-ImmoMakler®

Unsere Finanzierungspartner helfen Ihnen Ihr Wunschobjekt zu finanzieren.

Energieeffizient Bauen und Sanieren

Ob Haus oder Wohnung, Bau oder Kauf: Wir unterstützen Sie auf dem Weg in die eigenen vier Wände.

Ihr Spezialist für Baufinanzierung

Wir vergleichen für Sie über 400 Banken und Bausparkassen und bieten Ihnen die besten Konditionen für eine optimale Finanzierung.

Genau mein Zuhause

Individuell, effizient und hochwertig – Hanse Haus baut dank zahlreichen Planungs- und Ausstattungsoptionen genau Ihr Zuhause.

Objekte in der Region München und Südostoberbayern zum Kauf

Immobilienangebote speziell für die Region

Als Immobilienmakler für die Region München und Südostoberbayern bedienen wir speziell Stadt und Landkreis München, Wasserburg am Inn und den Landkreis Rosenheim. Informieren Sie sich über unsere regionenspezifischen Angebote!