Modernes Zweifamilienhaus mit Garten und Garage, direkt an der S-Bahnlinie
81247 München / Obermenzing, Zweifamilienhaus zum Kauf
Referenz
Dieses Objekt wurde bereits erfolgreich vermittelt.
Objektbeschreibung
Beschreibung
Modernes, hochwertiges, freistehendes Zweifamilienhaus Baujahr 2014 in begehrter Wohnlage von Obermenzing Nahe Bahngleisen.
Ideal zum Selbstbezug, als Kapitalanlage oder als Mehrgenerationenhaus!
Das gehobene und zugleich moderne Wohnambiente des im Jahr 2014 in Ziegelmassivbauweise errichteten freistehenden Zweifamilienhauses besticht durch eine gute Raumaufteilung von hellen Zimmern, die eine flexible Nutzung des Hauses ermöglicht.
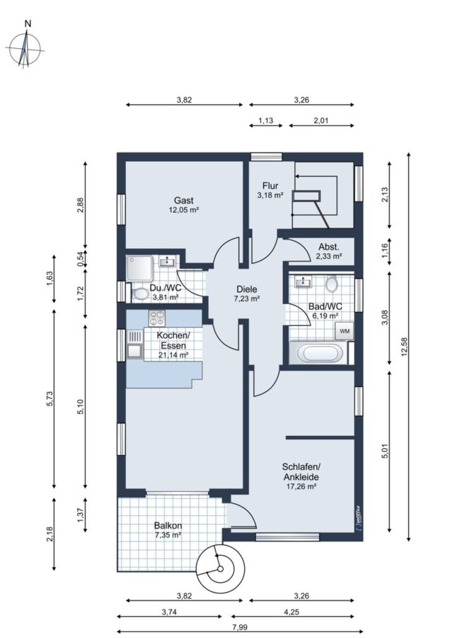
Im Erdgeschoss befindet sich eine sehr gepflegte, geräumige 2-Zimmer Wohnung mit einer Wohnfläche von ca. 70 qm. Die Wohnung verfügt über ein Schlafzimmer, Badezimmer, Küche mit hochwertigen Einbaugeräten sowie einen Flur mit praktischer Abstellkammer. Vom Wohn-/Esszimmer aus hat man Zugang zu Terrasse und Garten.
Die ebenfalls sehr gepflegte und als modern / stylisch zu bezeichnende 4-Zimmer Wohnung erstreckt sich über das 1. und 2. Obergeschoss (keine Dachschrägen). Diese Einheit wäre bei Bedarf weiter unterteilbar. Die Wohnung vereinigt ca. 77 qm im 1.Obergeschoss und ca. 52,5 qm im 2. Obergeschoss zu einer Gesamt-Wohnfläche von ca. 129,5 qm. Über eine Außentreppe gelangt man ebenfalls in den großen Garten, der bei Bedarf zwischen den beiden Einheiten abgetrennt werden könnte.
Im trockenen Keller befinden sich diverse Kellerräume sowie die hochmoderne Luft-Wärmepumpe der Marke alpha innotec.
Zum Haus gehört eine neuwertige Einzelgarage mit Licht und Stromanschluss sowie ein Außenstellplatz direkt vor dem Haus.
Der Kaufpreis setzt sich wie folgt zusammen:
Zweifamilienhaus 1.290.000 EUR + Garage und Stellplatz 25.000 EUR, ergibt einen Gesamtkaufpreis in Höhe von 1.315.000 EUR.
Ausstattung
DIE AUSSTATTUNG IM ÜBERBLICK:
- Freistehendes neuwertiges Zweifamilienhaus Baujahr 2014
- Beide Einheiten haben Zugang zum Garten
- Sehr solide und hochwertig gebautes Ziegelmassivhaus
- Zum Zeitpunkt des Baus als Energieeffizienzhaus 70 errichtet
- PV Anlage auf dem Dach
- Zeitgemäße hochwertige Luft-/Wasser Wärmepumpe im Außenbereich
- Kellerräume individuell nutzbar und umgestaltbar mit Fußbodenheizung
- Gut isolierte Fenster mit Rollläden
- Einzelraumsteuerung für Fußbodenheizung in allen Wohnräumen und Bädern
- Satellittenanschluss
- Grund für Verkauf: Berufsbedingter Ortswechsel der Familie
- Einzelgarage mit Strom und Licht und separater Außenstellplatz
- Detaillierte Baubeschreibung kann versandt werden
- uvm.
Sonstiges
Wir freuen uns, Ihnen dieses Objekt bei einem Besichtigungstermin ausführlich vorzustellen. Aus rechtlichen Gründen bitten wir Sie, für Ihre erste Kontaktaufnahme mit uns das Kontaktformular des Portals zu nutzen, auf dem Sie diese Immobilie gefunden haben.
Finestep bietet dieses Objekt provisionspflichtig zum Kauf an.
Für die vom Eigentümer übernommenen Objektdaten übernimmt Finestep keine Gewähr in Bezug auf die Vollständigkeit, Richtigkeit und Aktualität dieser Informationen. Irrtum und Zwischenverkauf ist vorbehalten. Die Käuferprovision in Höhe von 2,38 % inkl. 19 % MwSt. ist verdient und fällig mit Beurkundung des notariellen Kaufvertrages. Der Immobilienmakler hat einen provisionspflichtigen Maklervertrag mit dem Verkäufer in gleicher Höhe abgeschlossen.
Ist Ihnen das von Finestep nachgewiesene Objekt bereits bekannt, ist dies Finestep schriftlich spätestens innerhalb von fünf Werktagen unter Nennung der Quelle und des Nachweisdatums mitzuteilen. Sämtliche Unterschriften und Mitteilungen haben auch bei Übermittlung per Telefax und E-Mail Ihre Rechtsgültigkeit. Als Gerichtsstand wird München vereinbart sowie die Anwendung Deutschen Rechts.
Der Nachweis dieses Objekts ist ausschließlich für Sie persönlich bestimmt. Eine unberechtigte Weitergabe an Dritte ist daher nicht gestattet. Sollte eine weitere Person aus Ihrem Kreis ebenfalls Interesse an dem Objekt zeigen, teilen Sie uns dies bitte mit. Gerne werden wir ein eigenes, persönliches Angebot zusenden.
Die hier eingestellten Flächenangaben sind mit größter Sorgfalt recherchiert, erheben jedoch nicht den Anspruch auf Alleingültigkeit und werden lediglich unverbindlich zu Informationszwecken zur Verfügung gestellt.
Alle Angaben nach bestem Wissen und nach Angabe des Verkäufers. Irrtum und Zwischenverkauf vorbehalten. Dieses Exposé ist eine Vorabinformation, als Rechtsgrundlage gilt allein der notariell abgeschlossene Kaufvertrag.
Lage
Obermenzing, genauer Pasing-Obermenzing ist eines der lebhaftesten Viertel Münchens, speziell des Münchner Westens. Rund um den Bahnhof und den Pasinger Marienplatz (nicht zu verwechseln mit dem Marienplatz in der Altstadt Münchens) ist immer was los. Wer kulturell etwas erleben möchte, ist mit einem Besuch der Pasinger Fabrik gut beraten. Prägend für das Stadtteilbild sind das Villenviertel und der Stadtpark mit seinen einladenden und großzügigen Grünflächen. Die Infrastuktur ist hervorragend und bietet eine Vielzahl von Kindergärten, Grundschulen und weiterführende Schulen sowie andere Weiterbildungseinrichtungen. Die Pasing Arcaden zählen mittlerweile zu den beliebtesten Shopping-Malls der Stadt. Die Bewohner ziehen die Arcaden den Einkaufsmeilen in der Innenstadt vor. Das Westbad mit seiner markanten Glaskuppel verbindet sportlichen Anspruch mit Badespaß für die ganze Familie. Außerdem gibt es dort eine offene Saunalandschaft mit verschiedenen Aufgüssen, Dampfbad und Sanarium. Das benachbarte Freibad West bietet die größten Liegewiesen aller Münchner Freibäder.
Pasing-Obermenzing ist sehr gut an den Münchener ÖPNV angebunden. Die S-Bahn Stationen „Untermenzing“ und "Obermenzing" sind in knapp 10 Minuten zu Fuß schnell erreicht. Die Autobahnen A99 (Umgehungsautobahn), die A96 Richtung Lindau sowie die A8 Richtung Augsburg und Stuttgart erreichen Sie in nur wenigen Fahrminuten.
Bauseweinallee 70, 81247 München / Obermenzing, Deutschland (auf Google Maps ansehen)
Unsere Finanzierungspartner helfen Ihnen Ihr Wunschobjekt zu finanzieren.
Ihr Spezialist für Baufinanzierung
Wir vergleichen für Sie über 400 Banken und Bausparkassen und bieten Ihnen die besten Konditionen für eine optimale Finanzierung.
Genau mein Zuhause
Individuell, effizient und hochwertig – Hanse Haus baut dank zahlreichen Planungs- und Ausstattungsoptionen genau Ihr Zuhause.
Objekte in der Region München und Südostoberbayern zum Kauf
Immobilienangebote speziell für die Region
Als Immobilienmakler für die Region München und Südostoberbayern bedienen wir speziell Stadt und Landkreis München, Wasserburg am Inn und den Landkreis Rosenheim. Informieren Sie sich über unsere regionenspezifischen Angebote!




















