Baugenehmigung bereits erteilt – Einfamilienhaus auf großem Grundstück

85298 Scheyern / Euernbach, Einfamilienhaus zum Kauf

Objektdaten

  • Objekt ID
    5105-5
  • Objekttypen
    Einfamilienhaus, Haus
  • Adresse
    (Euernbach)
    85298 Scheyern / Euernbach
  • Wohnfläche ca.
    195 m²
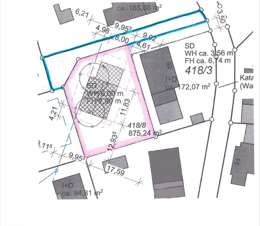
  • Grund­stück ca.
    777 m²
  • Nutzfläche ca.
    57 m²
  • Balkon-/Terrassen­fläche ca.
    60 m²
  • Zimmer
    6
  • Schlafzimmer
    3
  • Badezimmer
    2
  • Wohneinheiten
    1
  • Balkone
    3
  • Ausstattung
    gehoben
  • Verfügbar ab
    Sofort
  • Kaufpreis
    762.205 EUR

Direktanfrage

* Pflichtangaben
 SSL-verschlüsselt

Objekt­beschreibung

Beschreibung

Willkommen in Euernbach, das mit seiner natürlichen Schönheit und der herzlichen Gemeinschaft ein wahrhaftes Zuhause für Ihre Familie bietet.

Hier, auf einem sonnigen und großzügigen Grundstück von ca. 777 qm², haben Sie die einmalige Gelegenheit, den Grundstein für Ihr ganz persönliches Traumhaus zu legen.

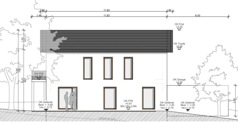
Stellen Sie sich vor, wie Ihr neues Einfamilienhaus, mit einer beeindruckenden Wohnfläche von über 195 qm², in dieser malerischen Umgebung entsteht. Der geplante Entwurf umfasst insgesamt 6 lichtdurchflutete Zimmer, die Raum für individuelle Gestaltung und persönliche Akzente bieten. Zwei liebevoll gestaltete Kinderzimmer werden zu einem Ort des Spiels und Lernens. Das Elternschlafzimmer, ausgestattet mit einem 9 qm² großen Ankleideraum, wird zum Rückzugsort, wo Sie nach einem langen Tag zur Ruhe kommen.

Im Herzen Ihres neuen Zuhauses erwartet Sie ein großzügiger Wohn- und Essbereich, der mit seiner offenen Gestaltung und großen Fenstern für eine einladende, helle Atmosphäre sorgt. Hier können Sie gemeinsam mit Ihrer Familie unvergessliche Momente erleben, sei es bei einem gemütlichen Abendessen oder einem geselligen Spieleabend mit Freunden. Die angrenzende, moderne Küche bietet Ihnen die Möglichkeit, kulinarische Köstlichkeiten zuzubereiten und dabei die Gesellschaft Ihrer Liebsten zu genießen.

An warmen Sommertagen wird die große Terrasse zum idealen Ort, um das Leben im Freien zu genießen. Stellen Sie sich vor, wie Sie an einem Sommerabend mit einem Glas Wein in der Hand den Sonnenuntergang beobachten oder mit Freunden ein gemütliches Grillfest feiern. Die zwei Balkone Ihres neuen Hauses laden dazu ein, den Morgen mit einer Tasse Kaffee in der Hand zu beginnen oder einfach die frische Luft und die Ruhe der Umgebung zu genießen.

Das Haus erstreckt sich über zwei Etagen, die durch eine elegante Treppe miteinander verbunden sind. Hier finden Sie nicht nur Platz für Ihre Familie, sondern auch die Möglichkeit, Ihre Träume und Wünsche zu verwirklichen. Die Doppelgarage sowie der zusätzliche Abstellraum bieten ausreichend Platz für Ihre Fahrzeuge und zusätzliche Abstellmöglichkeiten, sodass Sie immer gut organisiert sind.

Das Grundstück in Euernbach ist mehr als nur ein Platz zum Wohnen; es ist ein Raum, in dem Erinnerungen geschaffen werden. Hier können Sie Ihre Zukunft gestalten, Ihre Träume verwirklichen und ein Zuhause schaffen, das den Bedürfnissen Ihrer Familie gerecht wird. Lassen Sie sich von der idyllischen Lage und den zahlreichen Gestaltungsmöglichkeiten inspirieren und nutzen Sie diese einmalige Gelegenheit, um Ihr neues Zuhause zu bauen. Ihr Traumhaus in Euernbach wartet auf Sie – beginnen Sie noch heute mit der Verwirklichung Ihrer Wohnträume!

***Sie kaufen den Grundstücksanteil für 399.000 Euro. Außerdem wird ein Werkvertrag mit unserem renommierten Partner „Streif“ geschlossen, der das Haus zum Festpreis in der Ausbaustufe „fast schlüsselfertig plus“ anbietet. Lediglich Parkett, Innentüren und Malerarbeiten sind nicht im Angebot enthalten und können hinzugebucht werden. Übliche Baunebenkosten wie Anschlusskosten und Beiträge für die Gemeinde kommen zum angezeigten Preis noch hinzu. Lassen Sie sich gerne von uns beraten. Es ist außerdem möglich, das Grundstück ohne die Bauleistung von Streif zu kaufen oder eine andere Ausbaustufe zu wählen.

Ausstattung

IHRE AUSSTATTUNG IM ÜBERBLICK:

Im Leistungs- & Lieferumfang "STREIF Passiv" enthalten:

  • Ausführung als Effizienzhaus 40
  • Energiebedarf wird zu mindestens 55% aus erneuerbaren Energien erreicht
  • Die STREIF-Außenwand entspricht den Anforderungen an eine Passivhaus-Außenwand
  • Die Fundamentplatte erhält eine Mehrspartenhauseinführung
  • Perimeterdämmung 100 mm gemäß energetischer Berechnung unter der Fundamentplatte
  • Die Fenster bestehen aus einer Dreischeiben-Wärmeschutzverglasung mit einem außergewöhnlich guten Uw- Wert von 0,82 W/m² K
  • Die Dachkonstruktion ist für eine erhöhte Schneelast ausgelegt
  • Die Dachneigung beträgt 24°
  • Der Kniestock hat eine Höhe von 2030 mm
  • Die Außenwandstärke beträgt 290 mm
  • Alle Fenster sind mit elektrisch bedienbaren Rollläden ausgestattet
  • Die Haustüre ist mit einer 3-fach Wärmeschutz-Isolierverglasung und einer 5-fach Sicherheitsverriegelung versehen

Sonstiges

Wir freuen uns, Ihnen dieses Objekt bei einem Besichtigungstermin ausführlich vorzustellen. Aus rechtlichen Gründen bitten wir Sie, für Ihre erste Kontaktaufnahme mit uns das Kontaktformular des Portals zu nutzen, auf dem Sie diese Immobilie gefunden haben. Finestep bietet dieses Objekt provisionspflichtig zum Kauf an. Für die vom Eigentümer übernommenen Objektdaten übernimmt Finestep keine Gewähr in Bezug auf die Vollständigkeit, Richtigkeit und Aktualität dieser Informationen. Irrtum und Zwischenverkauf ist vorbehalten. Ist Ihnen das von Finestep nachgewiesene Objekt bereits bekannt, ist dies Finestep schriftlich spätestens innerhalb von fünf Werktagen unter Nennung der Quelle und des Nachweisdatums mitzuteilen. Sämtliche Unterschriften und Mitteilungen haben auch bei Übermittlung per Telefax und E-Mail Ihre Rechtsgültigkeit. Als Gerichtsstand wird München vereinbart sowie die Anwendung Deutschen Rechts. Alle Angaben nach bestem Wissen und nach Angabe des Verkäufers. Irrtum und Zwischenverkauf vorbehalten. Dieses Exposé ist eine Vorabinformation, als Rechtsgrundlage gilt allein der notariell abgeschlossene Kaufvertrag Finestep Immobilien GmbH Humboldtstr. 8 81543 München http://www.finestep.de

Ausstattung / Merkmale

  • ✓ Badewanne
  • ✓ Balkon
  • ✓ Dusche
  • ✓ Garage
  • ✓ Garten/Gartennutzung
  • ✓ Gäste-WC
  • ✓ Offene Küche
  • ✓ Tageslichtbad
  • ✓ Wasch-/Trockenraum

Lage

IHRE LAGE IM ÜBERBLICK:

Euernbach ist ein malerischer Stadtteil der Gemeinde Scheyern, eingebettet in die sanfte Hügellandschaft des oberbayerischen Voralpenlandes. Die ruhige und naturnahe Lage macht Euernbach zu einem idealen Wohnort für Familien, Paare und Naturliebhaber, die Wert auf eine harmonische Verbindung zwischen ländlichem Charme und moderner Infrastruktur legen.

Die Umgebung von Euernbach besticht durch ihre vielfältige Natur, die zu zahlreichen Freizeitaktivitäten einlädt. Ob ausgedehnte Spaziergänge, Radtouren oder Wanderungen – hier finden Sie zahlreiche Möglichkeiten, die frische Luft und die Schönheit der Natur zu genießen. Der nahegelegene Wald und die umliegenden Wiesen bieten nicht nur Erholungsräume, sondern auch einen Lebensraum für zahlreiche Tierarten.

Die gute Anbindung an die Städte Pfaffenhofen und Ingolstadt ermöglicht es den Bewohnern von Euernbach, sowohl die Vorzüge des ländlichen Lebens als auch die Annehmlichkeiten städtischer Infrastruktur zu genießen. In Pfaffenhofen, das nur wenige Kilometer entfernt ist, finden Sie eine Vielzahl von Einkaufsmöglichkeiten, Schulen, Kindergärten und medizinischen Einrichtungen.

Auch die Verkehrsanbindung ist hervorragend: Über die nahegelegene A9 und die B299 sind Sie schnell in den größeren Städten der Region und können die Vorzüge der bayerischen Metropole München in weniger als einer Stunde erreichen.

Euernbach selbst zeichnet sich durch eine freundliche und hilfsbereite Gemeinschaft aus, in der Nachbarschaft und soziale Kontakte großgeschrieben werden. Regelmäßige Veranstaltungen und Feste stärken den Zusammenhalt und bieten die Gelegenheit, sich mit den Nachbarn auszutauschen und die lokale Kultur zu erleben.

Die Lage in Scheyern ist für Familien besonders attraktiv, denn die Kombination aus schöner Landschaft, guter Anbindung und einer lebendigen Gemeinschaft macht Euernbach zu einem besonders begehrten Wohnort.

Insgesamt bietet Euernbach in Scheyern die perfekte Balance zwischen ländlicher Idylle und urbanem Leben, ideal für alle, die ein harmonisches Zuhause in einer freundlichen Umgebung suchen.

Die dargestellte Position der Immobilie ist nur eine ungefähre Angabe.

Objekt­beschreibung

Beschreibung

Willkommen in Euernbach, das mit seiner natürlichen Schönheit und der herzlichen Gemeinschaft ein wahrhaftes Zuhause für Ihre Familie bietet.

Hier, auf einem sonnigen und großzügigen Grundstück von ca. 777 qm², haben Sie die einmalige Gelegenheit, den Grundstein für Ihr ganz persönliches Traumhaus zu legen.

Stellen Sie sich vor, wie Ihr neues Einfamilienhaus, mit einer beeindruckenden Wohnfläche von über 195 qm², in dieser malerischen Umgebung entsteht. Der geplante Entwurf umfasst insgesamt 6 lichtdurchflutete Zimmer, die Raum für individuelle Gestaltung und persönliche Akzente bieten. Zwei liebevoll gestaltete Kinderzimmer werden zu einem Ort des Spiels und Lernens. Das Elternschlafzimmer, ausgestattet mit einem 9 qm² großen Ankleideraum, wird zum Rückzugsort, wo Sie nach einem langen Tag zur Ruhe kommen.

Im Herzen Ihres neuen Zuhauses erwartet Sie ein großzügiger Wohn- und Essbereich, der mit seiner offenen Gestaltung und großen Fenstern für eine einladende, helle Atmosphäre sorgt. Hier können Sie gemeinsam mit Ihrer Familie unvergessliche Momente erleben, sei es bei einem gemütlichen Abendessen oder einem geselligen Spieleabend mit Freunden. Die angrenzende, moderne Küche bietet Ihnen die Möglichkeit, kulinarische Köstlichkeiten zuzubereiten und dabei die Gesellschaft Ihrer Liebsten zu genießen.

An warmen Sommertagen wird die große Terrasse zum idealen Ort, um das Leben im Freien zu genießen. Stellen Sie sich vor, wie Sie an einem Sommerabend mit einem Glas Wein in der Hand den Sonnenuntergang beobachten oder mit Freunden ein gemütliches Grillfest feiern. Die zwei Balkone Ihres neuen Hauses laden dazu ein, den Morgen mit einer Tasse Kaffee in der Hand zu beginnen oder einfach die frische Luft und die Ruhe der Umgebung zu genießen.

Das Haus erstreckt sich über zwei Etagen, die durch eine elegante Treppe miteinander verbunden sind. Hier finden Sie nicht nur Platz für Ihre Familie, sondern auch die Möglichkeit, Ihre Träume und Wünsche zu verwirklichen. Die Doppelgarage sowie der zusätzliche Abstellraum bieten ausreichend Platz für Ihre Fahrzeuge und zusätzliche Abstellmöglichkeiten, sodass Sie immer gut organisiert sind.

Das Grundstück in Euernbach ist mehr als nur ein Platz zum Wohnen; es ist ein Raum, in dem Erinnerungen geschaffen werden. Hier können Sie Ihre Zukunft gestalten, Ihre Träume verwirklichen und ein Zuhause schaffen, das den Bedürfnissen Ihrer Familie gerecht wird. Lassen Sie sich von der idyllischen Lage und den zahlreichen Gestaltungsmöglichkeiten inspirieren und nutzen Sie diese einmalige Gelegenheit, um Ihr neues Zuhause zu bauen. Ihr Traumhaus in Euernbach wartet auf Sie – beginnen Sie noch heute mit der Verwirklichung Ihrer Wohnträume!

***Sie kaufen den Grundstücksanteil für 399.000 Euro. Außerdem wird ein Werkvertrag mit unserem renommierten Partner „Streif“ geschlossen, der das Haus zum Festpreis in der Ausbaustufe „fast schlüsselfertig plus“ anbietet. Lediglich Parkett, Innentüren und Malerarbeiten sind nicht im Angebot enthalten und können hinzugebucht werden. Übliche Baunebenkosten wie Anschlusskosten und Beiträge für die Gemeinde kommen zum angezeigten Preis noch hinzu. Lassen Sie sich gerne von uns beraten. Es ist außerdem möglich, das Grundstück ohne die Bauleistung von Streif zu kaufen oder eine andere Ausbaustufe zu wählen.

Ausstattung

IHRE AUSSTATTUNG IM ÜBERBLICK:

Im Leistungs- & Lieferumfang "STREIF Passiv" enthalten:

  • Ausführung als Effizienzhaus 40
  • Energiebedarf wird zu mindestens 55% aus erneuerbaren Energien erreicht
  • Die STREIF-Außenwand entspricht den Anforderungen an eine Passivhaus-Außenwand
  • Die Fundamentplatte erhält eine Mehrspartenhauseinführung
  • Perimeterdämmung 100 mm gemäß energetischer Berechnung unter der Fundamentplatte
  • Die Fenster bestehen aus einer Dreischeiben-Wärmeschutzverglasung mit einem außergewöhnlich guten Uw- Wert von 0,82 W/m² K
  • Die Dachkonstruktion ist für eine erhöhte Schneelast ausgelegt
  • Die Dachneigung beträgt 24°
  • Der Kniestock hat eine Höhe von 2030 mm
  • Die Außenwandstärke beträgt 290 mm
  • Alle Fenster sind mit elektrisch bedienbaren Rollläden ausgestattet
  • Die Haustüre ist mit einer 3-fach Wärmeschutz-Isolierverglasung und einer 5-fach Sicherheitsverriegelung versehen

Sonstiges

Wir freuen uns, Ihnen dieses Objekt bei einem Besichtigungstermin ausführlich vorzustellen. Aus rechtlichen Gründen bitten wir Sie, für Ihre erste Kontaktaufnahme mit uns das Kontaktformular des Portals zu nutzen, auf dem Sie diese Immobilie gefunden haben. Finestep bietet dieses Objekt provisionspflichtig zum Kauf an. Für die vom Eigentümer übernommenen Objektdaten übernimmt Finestep keine Gewähr in Bezug auf die Vollständigkeit, Richtigkeit und Aktualität dieser Informationen. Irrtum und Zwischenverkauf ist vorbehalten. Ist Ihnen das von Finestep nachgewiesene Objekt bereits bekannt, ist dies Finestep schriftlich spätestens innerhalb von fünf Werktagen unter Nennung der Quelle und des Nachweisdatums mitzuteilen. Sämtliche Unterschriften und Mitteilungen haben auch bei Übermittlung per Telefax und E-Mail Ihre Rechtsgültigkeit. Als Gerichtsstand wird München vereinbart sowie die Anwendung Deutschen Rechts. Alle Angaben nach bestem Wissen und nach Angabe des Verkäufers. Irrtum und Zwischenverkauf vorbehalten. Dieses Exposé ist eine Vorabinformation, als Rechtsgrundlage gilt allein der notariell abgeschlossene Kaufvertrag Finestep Immobilien GmbH Humboldtstr. 8 81543 München http://www.finestep.de

Kontaktdaten

Hartmut Gralow, Finestep Immobilien GmbH
Immobiliendaten-Import und Darstellung für WordPress: WP-ImmoMakler®

Unsere Finanzierungspartner helfen Ihnen Ihr Wunschobjekt zu finanzieren.

Energieeffizient Bauen und Sanieren

Ob Haus oder Wohnung, Bau oder Kauf: Wir unterstützen Sie auf dem Weg in die eigenen vier Wände.

Ihr Spezialist für Baufinanzierung

Wir vergleichen für Sie über 400 Banken und Bausparkassen und bieten Ihnen die besten Konditionen für eine optimale Finanzierung.

Genau mein Zuhause

Individuell, effizient und hochwertig – Hanse Haus baut dank zahlreichen Planungs- und Ausstattungsoptionen genau Ihr Zuhause.

Objekte in der Region München und Südostoberbayern zum Kauf

Immobilienangebote speziell für die Region

Als Immobilienmakler für die Region München und Südostoberbayern bedienen wir speziell Stadt und Landkreis München, Wasserburg am Inn und den Landkreis Rosenheim. Informieren Sie sich über unsere regionenspezifischen Angebote!