Wenn Architektur Wärme ausstrahlt: Leben im echten Massivholzhaus am Waldrand

83024 Rosenheim, Doppelhaushälfte zum Kauf

Objektdaten

  • Objekt ID
    1365-3C
  • Objekttypen
    Doppelhaushälfte, Haus
  • Adresse
    (Westerndorf St Peter)
    83024 Rosenheim
  • Wohnfläche ca.
    165,60 m²
  • Grund­stück ca.
    174 m²
  • Nutzfläche ca.
    41,72 m²
  • Zimmer
    4
  • Schlafzimmer
    3
  • Badezimmer
    4
  • Baujahr
    2024
  • Letzte Modernisierung
    2026
  • Zustand
    Erstbezug
  • Ausstattung
    Luxus
  • Verfügbar ab
    ab sofort
  • Stellplatz:
    1 Stellplatz
  • Garage:
    1 Stellplatz
  • Kaufpreis
    1.090.000 EUR

Direktanfrage

* Pflichtangaben
 SSL-verschlüsselt

Objekt­beschreibung

Beschreibung

Wir freuen uns, Ihnen dieses außergewöhnliche Architektenhaus in hochwertiger Massiv-Holzbauweise vorstellen zu dürfen.

Das Haus befindet sich in der finalen Phase der Fertigstellung und bietet seinem zukünftigen Eigentümer eine seltene Gelegenheit, ein architektonisch und technisch bereits vollständig ausgearbeitetes Zuhause nach den eigenen Vorstellungen zu vollenden.

Die Auswahl der Fußböden, der Sanitärausstattungen, des Freisitzbelags sowie der Ausführung der Eingangstüre liegt bewusst noch in der Hand des Käufers. Daher wurden auch die Türzargen und hochwertigen Holztüren noch nicht gesetzt. Die hierfür vorgesehenen Budgets sind bereits im Kaufpreis enthalten, sodass keine zusätzlichen Kosten entstehen, sondern individuelle Gestaltungsfreiheit auf höchstem Niveau.

Bei dieser Immobilie handelt es sich um ein echtes Holzhaus, dessen Wertigkeit sich in Konstruktion, Materialität und Raumgefühl widerspiegelt. Die Außenwände bestehen aus rund 30 cm starkem, massivem Vollholz und werden durch etwa 15 cm ökologische Dämmung ergänzt. Die Bauweise ist diffusionsoffen, frei von chemischen Bindemitteln und sorgt dauerhaft für ein gesundes, ausgeglichenes Raumklima. Massivholz steht hier nicht nur für Nachhaltigkeit, sondern vor allem für Substanz, Langlebigkeit und zeitlose Qualität.

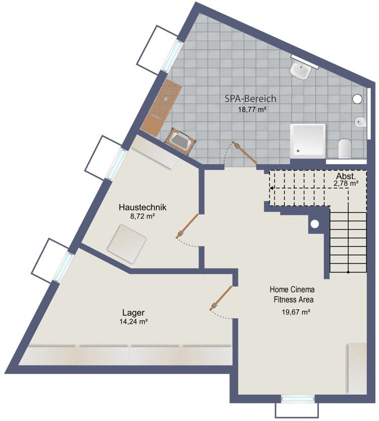
Großzügige Raumhöhen von 2,50 m – selbst im wohnlich ausgebauten Untergeschoss – verleihen dem Haus eine beeindruckende Offenheit und Großzügigkeit. Die klare, moderne Architektur wird von hochwertigen Materialien und durchdachten Details getragen.

In allen Etagen ist eine einzeln regulierbare Fußbodenheizung verlegt, die in Kombination mit den vom Käufer wählbaren Echtholzböden ein behagliches und zugleich exklusives Wohngefühl schafft. Großformatige Holz-Alu-Fenster mit elektrischen Lamellen verbinden Design, Funktionalität und Wohnkomfort auf elegante Weise.

Ein integrierter Wäscheabwurfschacht, eine dezentrale Wohnraumlüftung sowie eine smarte Bus-Technologie für Licht, Beschattung und Heizung unterstreichen den hohen technischen Anspruch dieser Immobilie und ermöglichen komfortables Wohnen auf Knopfdruck.

Die Bäder sind hochwertig vorbereitet und lassen Raum für individuelle Akzente. Ob Armaturen, Sanitärobjekte oder Materialien – hier kann der neue Eigentümer seinen persönlichen Stil verwirklichen. Rainshower-Duschen, Badewanne, Bidet sowie ein vorbereiteter SPA-Bereich bilden die Basis für ein privates Wellnessambiente auf hohem Niveau.

Auch energetisch ist das Haus konsequent zukunftsorientiert geplant. Eine Photovoltaikanlage mit 8,5 kW Leistung und Batteriespeicher, die Energieeffizienzklasse A+ sowie die umfassende Smart-Home-Integration sorgen für einen nachhaltigen, effizienten und komfortablen Betrieb.

Der südwestlich ausgerichtete Freisitz mit Waldblick verbindet das Haus harmonisch mit seiner natürlichen Umgebung. Ebenso verfügt dieses Haus über weitere Terrasse, die Ihr Wohnzimmer auf eine harmonische Weise vergrößert.

Die Lage am Waldrand bietet unmittelbaren Zugang zu Lauf- und Wanderwegen sowie ein hohes Maß an Ruhe und Privatsphäre. Auf einen klassischen Garten wurde bewusst verzichtet. Stattdessen setzt das Konzept auf einen pflegeleichten, reduzierten Außenbereich, der den Fokus auf Aussicht, Licht und Erholung legt. Der Blick ins Grüne, die Abendsonne auf dem überdachten und beleuchteten Freisitz und der Wald in direkter Nachbarschaft stehen hier für echte Lebensqualität – besonders für Menschen, die stilvoll wohnen möchten, ohne ihre freie Zeit mit Gartenarbeit zu verbringen.

Der separate Hauseingang unterstreicht den eigenständigen Einfamilienhauscharakter dieser Immobilie. Ein zusätzlicher Stellplatz, eine begrünte Einzelgarage, die sofort gestellt wird, der vorbereitete Kaminanschluss sowie die hochwertige Massiv-Holzbauweise in Kombination mit moderner Technik und individuellen Gestaltungsmöglichkeiten machen dieses Haus zu einem dauerhaft wertbeständigen Zuhause mit besonderem Wohngefühl.

Kontaktieren Sie uns gerne um einen persönlichen Besichtigungstermin zu vereinbaren!

Ausstattung

IHRE AUSSTATTUNG IM ÜBERBLICK:

  • Massivholzhaus von Thoma Holz

Außenwände mit 30 cm starkem Vollholz plus ca. 15 cm ökologischer Dämmung – verarbeitet ohne chemische Bindemittel, atmungsaktiv und wohngesund

  • Wohngesundes Raumklima – atmungsaktiv & frei von chemischer Verklebung
  • 4 luxuriöse Bäder mit Rainshower-Duschen, Bidets, Badewanne
  • Fußbodenheizung in allen Etagen
  • Echtholzböden in 2 cm Stärke bereits in der oberen Etage verlegt
  • Im Budget enthalten, die Personalisierung Ihres Hauses nach Ihren Wünschen
  • SPA-Bereich mit hochwertiger sanitärer Ausstattung
  • Kamin- / Kachelofenanschluss
  • Raumhöhen von 2,50 m – auch im Untergeschoss (wohnraumgeeignet)
  • Wäscheabwurfschacht
  • Photovoltaikanlage (8,5 kW) mit Batteriespeicher
  • Energieeffizienzklasse A+
  • Buslösung mit Smart-Home-Integration (Licht, Beschattung, Heizung etc.)
  • Holz-Alu-Fenster mit elektrischen Lamellen
  • Dezentrale Wohnraumlüftung
  • Einzelgarage mit Gründach + zusätzlicher Stellplatz
  • Freisitz mit Bergblick im Obergeschoss mit 21,05m² und südwestlich ausgerichtete Terrasse mit 12.00 m²
  • Separater Zugang im Stil eines Einfamilienhauscharakters
  • Gesamtwohn- und Nutzfläche: ca. 207,32 m² (berechnet durch unseren Architekten)
  • Direkte Waldrandlage – perfekte Anbindung an Lauf- und Wanderwege

Sonstiges

Wir freuen uns, Ihnen dieses Objekt bei einem Besichtigungstermin ausführlich vorzustellen. Aus rechtlichen Gründen bitten wir Sie, für Ihre erste Kontaktaufnahme mit uns das Kontaktformular des Portals zu nutzen, auf dem Sie diese Immobilie gefunden haben. Finestep bietet dieses Objekt provisionspflichtig zum Kauf an. Für die vom Eigentümer übernommenen Objektdaten übernimmt Finestep keine Gewähr in Bezug auf die Vollständigkeit, Richtigkeit und Aktualität dieser Informationen. Irrtum und Zwischenverkauf ist vorbehalten. Die Käuferprovision in Höhe von 3,57 % inkl. 19 % USt. ist verdient und fällig mit Beurkundung des notariellen Kaufvertrages. Ist Ihnen das von Finestep nachgewiesene Objekt bereits bekannt, ist dies Finestep schriftlich spätestens innerhalb von fünf Werktagen unter Nennung der Quelle und des Nachweisdatums mitzuteilen. Sämtliche Unterschriften und Mitteilungen haben auch bei Übermittlung per Telefax und E-Mail Ihre Rechtsgültigkeit. Als Gerichtsstand wird München vereinbart sowie die Anwendung Deutschen Rechts. Alle Angaben nach bestem Wissen und nach Angabe des Verkäufers. Irrtum und Zwischenverkauf vorbehalten. Dieses Exposé ist eine Vorabinformation, als Rechtsgrundlage gilt allein der notariell abgeschlossene Kaufvertrag.

Finestep Immobilien GmbH

Humboldtstr. 8
81543
München

http://www.finestep.de

Ausstattung / Merkmale

  • ✓ Gäste-WC
  • ✓ Keller

Lage

Die Doppelhaushälfte befindet sich im exklusiven Rosenheimer Stadtteil Egarten, einer der begehrtesten Wohnlagen der Stadt. Direkt am Rande des Keferwaldes gelegen, überzeugt die Lage mit einer harmonischen Verbindung aus urbanem Komfort und naturnaher Ruhe.

Großzügige Einfamilienhäuser, gepflegte Gärten und weitläufige Grünflächen prägen das Wohnbild – ideal für Familien, Berufstätige und alle, die eine hochwertige Wohnumgebung schätzen.

Naturnähe & Freizeitwert:
Das unmittelbar angrenzende Naherholungsgebiet Keferwald lädt zu Spaziergängen, Joggingrunden oder entspannten Nachmittagen im Grünen ein. Nur wenige Gehminuten entfernt finden sich vielfältige Sportmöglichkeiten: Zwei Tennisclubs, Fußballplätze, eine Hockeyanlage, American Football und auch das Eisstadion bieten aktiven Menschen zahlreiche Optionen direkt vor der Haustür.

Zentrale, aber ruhige Lage:
Trotz der ruhigen Wohnstraße ist die Innenstadt Rosenheims in wenigen Minuten erreichbar. Die Zughaltestelle "Hochschulstadt" ist lediglich fünf Gehminuten entfernt und bietet schnelle Anbindung an das regionale Bahnnetz. Die Westtangente sowie die Autobahnauffahrt Rosenheim-West sorgen für eine ausgezeichnete Verkehrsanbindung in Richtung München, Salzburg sowie Innsbruck und Brenner. Auch der Hochschulcampus Rosenheim ist in nur fünf Autominuten erreichbar.

Familienfreundliche Infrastruktur:
Egarten überzeugt durch die Nähe zu einer exzellenten Bildungs- und Betreuungsinfrastruktur. Kindergärten und alle Schulformen, von der Grundschule bis zum Gymnasium und zur Hochschule, befinden sich in bequemer Reichweite. Die medizinische Versorgung ist durch das nahegelegene Klinikum Rosenheim gesichert.

Hoher Freizeitwert durch Lage in der Region:
Neben dem städtischen Freizeit- und Kulturangebot bietet die Lage am Alpenrand auch ideale Voraussetzungen für Wochenendausflüge: Der Chiemsee sowie zahlreiche Wintersportgebiete in den bayerischen und Tiroler Alpen sind in rund 45 Minuten Fahrzeit erreichbar.

Die dargestellte Position der Immobilie ist nur eine ungefähre Angabe.

Objekt­beschreibung

Beschreibung

Wir freuen uns, Ihnen dieses außergewöhnliche Architektenhaus in hochwertiger Massiv-Holzbauweise vorstellen zu dürfen.

Das Haus befindet sich in der finalen Phase der Fertigstellung und bietet seinem zukünftigen Eigentümer eine seltene Gelegenheit, ein architektonisch und technisch bereits vollständig ausgearbeitetes Zuhause nach den eigenen Vorstellungen zu vollenden.

Die Auswahl der Fußböden, der Sanitärausstattungen, des Freisitzbelags sowie der Ausführung der Eingangstüre liegt bewusst noch in der Hand des Käufers. Daher wurden auch die Türzargen und hochwertigen Holztüren noch nicht gesetzt. Die hierfür vorgesehenen Budgets sind bereits im Kaufpreis enthalten, sodass keine zusätzlichen Kosten entstehen, sondern individuelle Gestaltungsfreiheit auf höchstem Niveau.

Bei dieser Immobilie handelt es sich um ein echtes Holzhaus, dessen Wertigkeit sich in Konstruktion, Materialität und Raumgefühl widerspiegelt. Die Außenwände bestehen aus rund 30 cm starkem, massivem Vollholz und werden durch etwa 15 cm ökologische Dämmung ergänzt. Die Bauweise ist diffusionsoffen, frei von chemischen Bindemitteln und sorgt dauerhaft für ein gesundes, ausgeglichenes Raumklima. Massivholz steht hier nicht nur für Nachhaltigkeit, sondern vor allem für Substanz, Langlebigkeit und zeitlose Qualität.

Großzügige Raumhöhen von 2,50 m – selbst im wohnlich ausgebauten Untergeschoss – verleihen dem Haus eine beeindruckende Offenheit und Großzügigkeit. Die klare, moderne Architektur wird von hochwertigen Materialien und durchdachten Details getragen.

In allen Etagen ist eine einzeln regulierbare Fußbodenheizung verlegt, die in Kombination mit den vom Käufer wählbaren Echtholzböden ein behagliches und zugleich exklusives Wohngefühl schafft. Großformatige Holz-Alu-Fenster mit elektrischen Lamellen verbinden Design, Funktionalität und Wohnkomfort auf elegante Weise.

Ein integrierter Wäscheabwurfschacht, eine dezentrale Wohnraumlüftung sowie eine smarte Bus-Technologie für Licht, Beschattung und Heizung unterstreichen den hohen technischen Anspruch dieser Immobilie und ermöglichen komfortables Wohnen auf Knopfdruck.

Die Bäder sind hochwertig vorbereitet und lassen Raum für individuelle Akzente. Ob Armaturen, Sanitärobjekte oder Materialien – hier kann der neue Eigentümer seinen persönlichen Stil verwirklichen. Rainshower-Duschen, Badewanne, Bidet sowie ein vorbereiteter SPA-Bereich bilden die Basis für ein privates Wellnessambiente auf hohem Niveau.

Auch energetisch ist das Haus konsequent zukunftsorientiert geplant. Eine Photovoltaikanlage mit 8,5 kW Leistung und Batteriespeicher, die Energieeffizienzklasse A+ sowie die umfassende Smart-Home-Integration sorgen für einen nachhaltigen, effizienten und komfortablen Betrieb.

Der südwestlich ausgerichtete Freisitz mit Waldblick verbindet das Haus harmonisch mit seiner natürlichen Umgebung. Ebenso verfügt dieses Haus über weitere Terrasse, die Ihr Wohnzimmer auf eine harmonische Weise vergrößert.

Die Lage am Waldrand bietet unmittelbaren Zugang zu Lauf- und Wanderwegen sowie ein hohes Maß an Ruhe und Privatsphäre. Auf einen klassischen Garten wurde bewusst verzichtet. Stattdessen setzt das Konzept auf einen pflegeleichten, reduzierten Außenbereich, der den Fokus auf Aussicht, Licht und Erholung legt. Der Blick ins Grüne, die Abendsonne auf dem überdachten und beleuchteten Freisitz und der Wald in direkter Nachbarschaft stehen hier für echte Lebensqualität – besonders für Menschen, die stilvoll wohnen möchten, ohne ihre freie Zeit mit Gartenarbeit zu verbringen.

Der separate Hauseingang unterstreicht den eigenständigen Einfamilienhauscharakter dieser Immobilie. Ein zusätzlicher Stellplatz, eine begrünte Einzelgarage, die sofort gestellt wird, der vorbereitete Kaminanschluss sowie die hochwertige Massiv-Holzbauweise in Kombination mit moderner Technik und individuellen Gestaltungsmöglichkeiten machen dieses Haus zu einem dauerhaft wertbeständigen Zuhause mit besonderem Wohngefühl.

Kontaktieren Sie uns gerne um einen persönlichen Besichtigungstermin zu vereinbaren!

Ausstattung

IHRE AUSSTATTUNG IM ÜBERBLICK:

  • Massivholzhaus von Thoma Holz

Außenwände mit 30 cm starkem Vollholz plus ca. 15 cm ökologischer Dämmung – verarbeitet ohne chemische Bindemittel, atmungsaktiv und wohngesund

  • Wohngesundes Raumklima – atmungsaktiv & frei von chemischer Verklebung
  • 4 luxuriöse Bäder mit Rainshower-Duschen, Bidets, Badewanne
  • Fußbodenheizung in allen Etagen
  • Echtholzböden in 2 cm Stärke bereits in der oberen Etage verlegt
  • Im Budget enthalten, die Personalisierung Ihres Hauses nach Ihren Wünschen
  • SPA-Bereich mit hochwertiger sanitärer Ausstattung
  • Kamin- / Kachelofenanschluss
  • Raumhöhen von 2,50 m – auch im Untergeschoss (wohnraumgeeignet)
  • Wäscheabwurfschacht
  • Photovoltaikanlage (8,5 kW) mit Batteriespeicher
  • Energieeffizienzklasse A+
  • Buslösung mit Smart-Home-Integration (Licht, Beschattung, Heizung etc.)
  • Holz-Alu-Fenster mit elektrischen Lamellen
  • Dezentrale Wohnraumlüftung
  • Einzelgarage mit Gründach + zusätzlicher Stellplatz
  • Freisitz mit Bergblick im Obergeschoss mit 21,05m² und südwestlich ausgerichtete Terrasse mit 12.00 m²
  • Separater Zugang im Stil eines Einfamilienhauscharakters
  • Gesamtwohn- und Nutzfläche: ca. 207,32 m² (berechnet durch unseren Architekten)
  • Direkte Waldrandlage – perfekte Anbindung an Lauf- und Wanderwege

Sonstiges

Wir freuen uns, Ihnen dieses Objekt bei einem Besichtigungstermin ausführlich vorzustellen. Aus rechtlichen Gründen bitten wir Sie, für Ihre erste Kontaktaufnahme mit uns das Kontaktformular des Portals zu nutzen, auf dem Sie diese Immobilie gefunden haben. Finestep bietet dieses Objekt provisionspflichtig zum Kauf an. Für die vom Eigentümer übernommenen Objektdaten übernimmt Finestep keine Gewähr in Bezug auf die Vollständigkeit, Richtigkeit und Aktualität dieser Informationen. Irrtum und Zwischenverkauf ist vorbehalten. Die Käuferprovision in Höhe von 3,57 % inkl. 19 % USt. ist verdient und fällig mit Beurkundung des notariellen Kaufvertrages. Ist Ihnen das von Finestep nachgewiesene Objekt bereits bekannt, ist dies Finestep schriftlich spätestens innerhalb von fünf Werktagen unter Nennung der Quelle und des Nachweisdatums mitzuteilen. Sämtliche Unterschriften und Mitteilungen haben auch bei Übermittlung per Telefax und E-Mail Ihre Rechtsgültigkeit. Als Gerichtsstand wird München vereinbart sowie die Anwendung Deutschen Rechts. Alle Angaben nach bestem Wissen und nach Angabe des Verkäufers. Irrtum und Zwischenverkauf vorbehalten. Dieses Exposé ist eine Vorabinformation, als Rechtsgrundlage gilt allein der notariell abgeschlossene Kaufvertrag.

Finestep Immobilien GmbH

Humboldtstr. 8
81543
München

http://www.finestep.de

Kontaktdaten

Kai Pommerenke, Finestep Immobilien GmbH

Energieausweis

  • Energieausweistyp
    Bedarfs­ausweis
  • Gültig bis
    12.03.2035
  • Gebäudeart
    Wohngebäude
  • Baujahr
    2024
  • Primärenergieträger
    Luft/Wasser Wärmepumpe
  • Endenergie­bedarf
    17,10 kWh/(m²·a)
  • Energie­effizienz­klasse
    A+
0 25 50 75 100 125 150 175 200 225 250+ H G F E D C B A A+ H G F E D C B A A+ Endenergiebedarf 17,10 kWh/(m²·a)
Immobiliendaten-Import und Darstellung für WordPress: WP-ImmoMakler®

Unsere Finanzierungspartner helfen Ihnen Ihr Wunschobjekt zu finanzieren.

Energieeffizient Bauen und Sanieren

Ob Haus oder Wohnung, Bau oder Kauf: Wir unterstützen Sie auf dem Weg in die eigenen vier Wände.

Ihr Spezialist für Baufinanzierung

Wir vergleichen für Sie über 400 Banken und Bausparkassen und bieten Ihnen die besten Konditionen für eine optimale Finanzierung.

Genau mein Zuhause

Individuell, effizient und hochwertig – Hanse Haus baut dank zahlreichen Planungs- und Ausstattungsoptionen genau Ihr Zuhause.

Objekte in der Region München und Südostoberbayern zum Kauf

Immobilienangebote speziell für die Region

Als Immobilienmakler für die Region München und Südostoberbayern bedienen wir speziell Stadt und Landkreis München, Wasserburg am Inn und den Landkreis Rosenheim. Informieren Sie sich über unsere regionenspezifischen Angebote!