Neubau: Bezugsfertiges exklusives Stadthaus mit anspruchsvoller Ausstattung

85653 Aying, Doppelhaushälfte zum Kauf

Referenz

Dieses Objekt wurde bereits erfolgreich vermittelt.

Objekt­beschreibung

Beschreibung

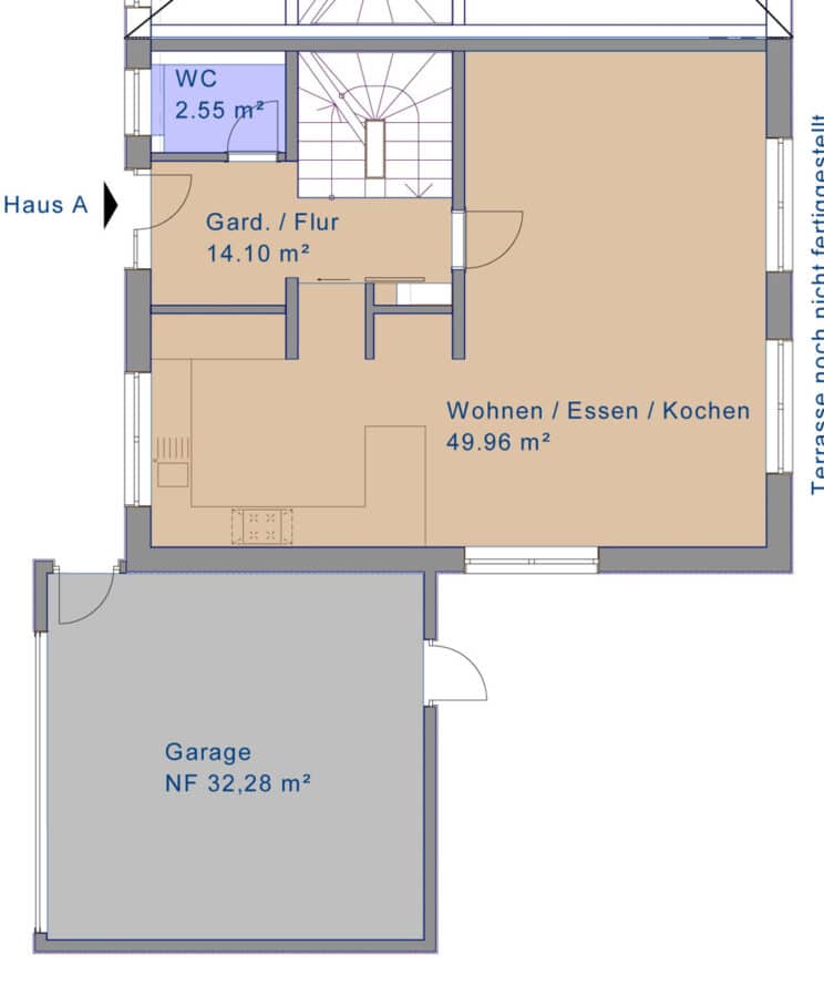
Neuerbaute, luxuriöse Doppelhaushälfte mit Hobbykeller und Garten verfügt über reichlich Platz für die ganze Familie. Das Gebäude bietet umfassend Platz für die freie Entfaltung und lädt zum Wohlfühlen ein.

Unter Verwendung hochwertigster Materialien & Armaturen wurde dieses Haus zu einem regelrechten Schmuckstück mit modernster Technik ausgebaut. Bereits am Eingang wird man von viel Holz, in Form einer Echtholzeingangstür mit Glaselement sowie Naturholzparkett aus Eiche empfangen. Das komplette Haus sowie die Treppenhäuser wurden mit wunderschönem Echtholz ausgekleidet und wird durch Spots elegant beleuchtet. Die großzügige, zum Wohnzimmer hin offene Küche mit Option einer Kücheninsel macht das gemeinsame Kochen zu einem Vergnügen, und lässt das Wohnzimmer zu einem Ort der Begegnung werden. Im großzügigen Wohnzimmer befindet sich ein Highlight des Hauses, das von Holz umrandete Sitzfenster, welches zum Lesen und Entspannen einlädt und den ganzen Raum zusätzlich mit reichlich Tageslicht flutet.

Durch das gesamte Haus zieht sich eine Edle Designlinie gemischt aus geöltem, dunklen Naturholz, großen Glasfenstern und luxuriösen Armaturen in schwarzer Farbe. Die Badezimmer sind ein absoluter Hingucker und wurden mit schönsten Materialien ausgestattet. Im 1. Stock befinden sich die ebenfalls hochwertigen Kinder- und Arbeitszimmer wovon 2 einen Zugang zu einem Balkon mit Aussicht in den eigenen Garten Richtung Süden besitzen. Im Obergeschoss befindet sich das Masterbedroom mit Dachgauben Fenster, französischem Balkon und begehbarem Kleiderschrank.
Neben dem Bett und in den Ecken sowie im angrenzenden Bad mit Badewanne und Regendusche wurden Bodenspots verbaut, die die Räume fantastisch in Szene setzen.

Ausstattung

Das ganze Haus wird durch eine Wärmepumpe und Fußbodenheizung gewärmt, welche sich mit einem Thermostat auf jeder Ebene oder durch Smarthome via App steuern lässt. Durch das verbaute m KNX-System (MDT technologies GmbH) lassen sich sowohl die Heizung als auch die Elektrik steuern. Auf dem Dach wurde eine 8kWp-PV-Anlage verlegt, welche den im Keller stationierten 9kW-Speicher speist. Ein großzügiger Hobbykeller lädt zur freien Gestaltung ein. Im Kaufpreis enthalten ist eine Doppelgarage, ein Mülltonenhäuschen sowie eine gepflasterte Einfahrt inklusive Humus und Begrünung.

In der ursprünglichen Planaung wurde die Wohnfläche mit 168,85qm angegeben.
Dazu kommt noch im Wesentlichen:

  • Lager KG wurde nicht als Keller sondern als Hobbyraum gebaut. Im Gegensatz zu Eingabeplanung wurden zum Beispiel drei Lichtschächte und nicht nur einer gebaut. Die Hälfte der Fläche, inkl. Flur wurde in die WFL eingerechnet:
  • 18,49qm
  • Im EG. Korrektur Terrassengröße, hälftige Anrechnung
  • 1,0qm
  • Im OG: Hier wurde in der Ursprungsplanung ein Luftraum geplant. Stattdessen wurde das angrenzende Zimmer größer.
  • 4,83qm

Sind in Summe also etwa 193qm, die nach gängiger Praxis einen realistischen "Wohrnaum" angeben. Bei der Wohnflächenberechnung nach DIN 277 ergäbe sich ein deutlich höherer Wert, bei der Berechnung nach WoFlV ein etwas Geringerer.

Sonstiges

Wir freuen uns, Ihnen dieses Objekt bei einem Besichtigungstermin ausführlich vorzustellen. Aus rechtlichen Gründen bitten wir Sie, für Ihre erste Kontaktaufnahme mit uns das Kontaktformular des Portals zu nutzen, auf dem Sie diese Immobilie gefunden haben.

Finestep bietet dieses Objekt provisionsfrei zum Kauf an.
Für die vom Eigentümer übernommenen Objektdaten übernimmt Finestep keine Gewähr in Bezug auf die Vollständigkeit, Richtigkeit und Aktualität dieser Informationen. Irrtum und Zwischenverkauf ist vorbehalten.

Ist Ihnen das von Finestep nachgewiesene Objekt bereits bekannt, ist dies Finestep schriftlich spätestens innerhalb von fünf Werktagen unter Nennung der Quelle und des Nachweisdatums mitzuteilen. Sämtliche Unterschriften und Mitteilungen haben auch bei Übermittlung per Telefax und E-Mail Ihre Rechtsgültigkeit. Als Gerichtsstand wird München vereinbart sowie die Anwendung Deutschen Rechts.

Der Nachweis dieses Objekts ist ausschließlich für Sie persönlich bestimmt. Eine unberechtigte Weitergabe an Dritte ist daher nicht gestattet. Sollte eine weitere Person aus Ihrem Kreis ebenfalls Interesse an dem Objekt zeigen, teilen Sie uns dies bitte mit. Gerne werden wir ein eigenes, persönliches Angebot zusenden.

Die hier eingestellten Flächenangaben sind mit größter Sorgfalt recherchiert, erheben jedoch nicht den Anspruch auf Alleingültigkeit und werden lediglich unverbindlich zu Informationszwecken zur Verfügung gestellt.

Alle Angaben nach bestem Wissen und nach Angabe des Verkäufers. Irrtum und Zwischenverkauf vorbehalten. Dieses Exposé ist eine Vorabinformation, als Rechtsgrundlage gilt allein der notariell abgeschlossene Kaufvertrag.

Lage

Dürrnhaar ist ein idyllischer Ortsteil der Gemeinde Aying im südlichen Münchner Landkreis. Das Dorf liegt drei Kilometer nördlich von Aying entfernt und hat ca. 700 Einwohner. Zentral im Ort gelegen befindet sich die S-Bahn-Station „Dürrnhaar“ in Richtung Münchner Innenstadt. Von Ihrem neuen Zuhause fußläufig in 2min erreichbar, besser geht es nicht. Auch die Nähe zur Autobahn A8 Richtung München und Salzburg ist für Pendler mit dem Auto sehr attraktiv. In Dürrnhaar befindet sich ein Kindergarten, Grund- und weiterführende Schulen gibt es in den angrenzenden Dörfern wie Höhenkirchen-Siegertsbrunn. Geschäfte und Läden für den alltäglichen Gebrauch finden Sie in Aying sowie in Höhnenkirchen Siegertsbrunn. Beide Ortschaften erreichen Sie mit dem Auto in ca. 5 Minuten. Besonders erwähnenswert ist der hohe Freizeitwert dieser Gegend. Zum einen durch die Nähe zu den bayrischen Alpen, zum anderen ist die Gemeinde Aying ein beliebtes Ausflugsziel für alle, welche bayrische Tradition, urige Biergärten und echte Bierbraukunst erleben wollen.

Immobiliendaten-Import und Darstellung für WordPress: WP-ImmoMakler®

Unsere Finanzierungspartner helfen Ihnen Ihr Wunschobjekt zu finanzieren.

Energieeffizient Bauen und Sanieren

Ob Haus oder Wohnung, Bau oder Kauf: Wir unterstützen Sie auf dem Weg in die eigenen vier Wände.

Ihr Spezialist für Baufinanzierung

Wir vergleichen für Sie über 400 Banken und Bausparkassen und bieten Ihnen die besten Konditionen für eine optimale Finanzierung.

Genau mein Zuhause

Individuell, effizient und hochwertig – Hanse Haus baut dank zahlreichen Planungs- und Ausstattungsoptionen genau Ihr Zuhause.

Objekte in der Region München und Südostoberbayern zum Kauf

Immobilienangebote speziell für die Region

Als Immobilienmakler für die Region München und Südostoberbayern bedienen wir speziell Stadt und Landkreis München, Wasserburg am Inn und den Landkreis Rosenheim. Informieren Sie sich über unsere regionenspezifischen Angebote!