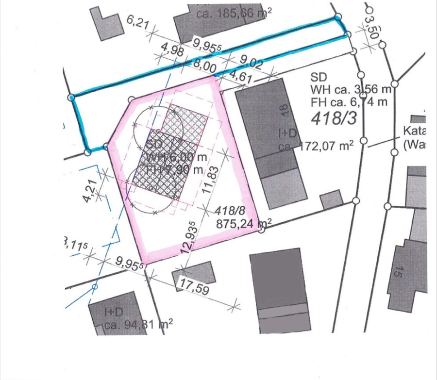
Baugrundstück in ruhiger Lage – 777m² Fläche mit Baugenehmigung

85298 Scheyern / Euernbach, Wohngrundstück zum Kauf

Objektdaten

  • Objekt ID
    5105-4
  • Objekttypen
    Grundstück, Wohngrundstück
  • Adresse
    85298 Scheyern / Euernbach
  • Grund­stück ca.
    777 m²
  • Zimmer
    0,0
  • Schlafzimmer
    0,0
  • Badezimmer
    0,0
  • Bebaubar nach
    § 34 Nachbarschaftsbebauung
  • Erschließung
    vollerschlossen
  • Verfügbar ab
    Sofort
  • Kaufpreis
    295.000 EUR

Direktanfrage

* Pflichtangaben
 SSL-verschlüsselt

Objekt­beschreibung

Beschreibung

Wir freuen uns, Ihnen dieses große und sonnige Grundstück in Scheyern-Euernbach vorstellen zu können.

Über eine Zufahrt, für die ein eingetragenes Geh- und Fahrtenrecht besteht, erreichen Sie das nahezu ebene Grundstück. Mit einer attraktiven südwestlichen Ausrichtung bietet es Ihnen auf 777 m² die Möglichkeit, Ihren Traum vom eigenen, großzügigen Zuhause zu verwirklichen.

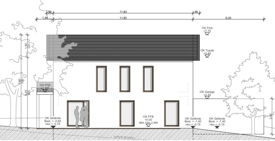
Es liegt bereits eine Baugenehmigung für ein Wohnhaus mit den Außenmaßen von 11,83 m x 9,96 m vor, sodass Sie hier eine beeindruckende Wohnfläche von über 195 m² realisieren können. Selbstverständlich haben Sie auch die Freiheit, ein kleineres Haus zu planen, solange Sie sich innerhalb der genehmigten Außenmaße bewegen.

Im nördlichen Bereich des Grundstücks ist zudem der Anbau einer Doppelgarage inklusive einem Abstellraum für Gartengeräte, Fahrräder und mehr genehmigt.

Zusätzlich möchten wir Ihnen die Möglichkeit anbieten, in Zusammenarbeit mit unserem langjährigen Partner STREIF-Haus zu bauen. Der Preis für das große Einfamilienhaus "STREIF Passiv" in der Ausstattungsvariante "Fast Fertig Plus" beträgt 467.205 EUR. In diesem Angebot sind bereits die Elektroinstallation, Heizung, Estrich sowie die Bäder mit Sanitärobjekten und Fliesen enthalten. Lediglich die Maler- und Tapezierarbeiten, die Spachtelung der Gipsfaserplatten sowie die Beschaffung und der Einbau der Bodenbeläge und Innentüren liegen in Ihrer Verantwortung.

Insgesamt ergibt sich somit ein äußerst attraktiver Gesamtpreis für das Grundstück und das Haus von 866.205 EUR. Nutzen Sie diese einmalige Gelegenheit, Ihr Traumhaus in einer hervorragenden Lage zu realisieren!

Ausstattung

Wenn Sie sich für das STREIF-Haus entscheiden sind folgende Ausstattungsmerkmale im Leistungs- & Lieferumfang "STREIF Passiv" enthalten:

  • Ausführung als Effizienzhaus 40
  • Energiebedarf wird zu mindestens 55% aus erneuerbaren Energien erreicht
  • Die STREIF-Außenwand entspricht den Anforderungen an eine Passivhaus-Außenwand
  • Die Fundamentplatte erhält eine Mehrspartenhauseinführung
  • Perimeterdämmung 100 mm gemäß energetischer Berechnung unter der Fundamentplatte
  • Die Fenster bestehen aus einer Dreischeiben-Wärmeschutzverglasung mit einem außergewöhnlich guten Uw- Wert von 0,82 W/m² K
  • Die Dachkonstruktion ist für eine erhöhte Schneelast ausgelegt
  • Die Dachneigung beträgt 24°
  • Der Kniestock hat eine Höhe von 2030 mm
  • Die Außenwandstärke beträgt 290 mm
  • Alle Fenster sind mit elektrisch bedienbaren Rollläden

ausgestattet

  • Die Haustüre ist mit einer 3-fach Wärmeschutz-Isolierverglasung und einer 5-fach Sicherheitsverriegelung versehen

Sonstiges

Wir freuen uns, Ihnen dieses Objekt bei einem Besichtigungstermin ausführlich vorzustellen. Aus rechtlichen Gründen bitten wir Sie, für Ihre erste Kontaktaufnahme mit uns das Kontaktformular des Portals zu nutzen, auf dem Sie diese Immobilie gefunden haben. Finestep bietet dieses Objekt provisionspflichtig zum Kauf an. Für die vom Eigentümer übernommenen Objektdaten übernimmt Finestep keine Gewähr in Bezug auf die Vollständigkeit, Richtigkeit und Aktualität dieser Informationen. Irrtum und Zwischenverkauf ist vorbehalten. Die Käuferprovision in Höhe von 3,57% inkl. 19% USt. auf den Grundstücksanteil ist verdient und fällig mit Beurkundung des notariellen Kaufvertrages. Ist Ihnen das von Finestep nachgewiesene Objekt bereits bekannt, ist dies Finestep schriftlich spätestens innerhalb von fünf Werktagen unter Nennung der Quelle und des Nachweisdatums mitzuteilen. Sämtliche Unterschriften und Mitteilungen haben auch bei Übermittlung per Telefax und E-Mail Ihre Rechtsgültigkeit. Als Gerichtsstand wird München vereinbart sowie die Anwendung Deutschen Rechts. Alle Angaben nach bestem Wissen und nach Angabe des Verkäufers. Irrtum und Zwischenverkauf vorbehalten. Dieses Exposé ist eine Vorabinformation, als Rechtsgrundlage gilt allein der notariell abgeschlossene Kaufvertrag Finestep Immobilien GmbH Humboldtstr. 8 81543 München http://www.finestep.de

Lage

IHRE LAGE IM ÜBERBLICK:

Euernbach ist ein malerischer Stadtteil der Gemeinde Scheyern, eingebettet in die sanfte Hügellandschaft des oberbayerischen Voralpenlandes. Die ruhige und naturnahe Lage macht Euernbach zu einem idealen Wohnort für Familien, Paare und Naturliebhaber, die Wert auf eine harmonische Verbindung zwischen ländlichem Charme und moderner Infrastruktur legen.

Die Umgebung von Euernbach besticht durch ihre vielfältige Natur, die zu zahlreichen Freizeitaktivitäten einlädt. Ob ausgedehnte Spaziergänge, Radtouren oder Wanderungen – hier finden Sie zahlreiche Möglichkeiten, die frische Luft und die Schönheit der Natur zu genießen. Der nahegelegene Wald und die umliegenden Wiesen bieten nicht nur Erholungsräume, sondern auch einen Lebensraum für zahlreiche Tierarten.

Die gute Anbindung an die Städte Pfaffenhofen und Ingolstadt ermöglicht es den Bewohnern von Euernbach, sowohl die Vorzüge des ländlichen Lebens als auch die Annehmlichkeiten städtischer Infrastruktur zu genießen. In Pfaffenhofen, das nur wenige Kilometer entfernt ist, finden Sie eine Vielzahl von Einkaufsmöglichkeiten, Schulen, Kindergärten und medizinischen Einrichtungen.

Auch die Verkehrsanbindung ist hervorragend: Über die nahegelegene A9 und die B299 sind Sie schnell in den größeren Städten der Region und können die Vorzüge der bayerischen Metropole München in weniger als einer Stunde erreichen.

Euernbach selbst zeichnet sich durch eine freundliche und hilfsbereite Gemeinschaft aus, in der Nachbarschaft und soziale Kontakte großgeschrieben werden. Regelmäßige Veranstaltungen und Feste stärken den Zusammenhalt und bieten die Gelegenheit, sich mit den Nachbarn auszutauschen und die lokale Kultur zu erleben.

Die Lage in Scheyern ist für Familien besonders attraktiv, denn die Kombination aus schöner Landschaft, guter Anbindung und einer lebendigen Gemeinschaft macht Euernbach zu einem besonders begehrten Wohnort.

Insgesamt bietet Euernbach in Scheyern die perfekte Balance zwischen ländlicher Idylle und urbanem Leben, ideal für alle, die ein harmonisches Zuhause in einer freundlichen Umgebung suchen.

Die dargestellte Position der Immobilie ist nur eine ungefähre Angabe.

Objekt­beschreibung

Beschreibung

Wir freuen uns, Ihnen dieses große und sonnige Grundstück in Scheyern-Euernbach vorstellen zu können.

Über eine Zufahrt, für die ein eingetragenes Geh- und Fahrtenrecht besteht, erreichen Sie das nahezu ebene Grundstück. Mit einer attraktiven südwestlichen Ausrichtung bietet es Ihnen auf 777 m² die Möglichkeit, Ihren Traum vom eigenen, großzügigen Zuhause zu verwirklichen.

Es liegt bereits eine Baugenehmigung für ein Wohnhaus mit den Außenmaßen von 11,83 m x 9,96 m vor, sodass Sie hier eine beeindruckende Wohnfläche von über 195 m² realisieren können. Selbstverständlich haben Sie auch die Freiheit, ein kleineres Haus zu planen, solange Sie sich innerhalb der genehmigten Außenmaße bewegen.

Im nördlichen Bereich des Grundstücks ist zudem der Anbau einer Doppelgarage inklusive einem Abstellraum für Gartengeräte, Fahrräder und mehr genehmigt.

Zusätzlich möchten wir Ihnen die Möglichkeit anbieten, in Zusammenarbeit mit unserem langjährigen Partner STREIF-Haus zu bauen. Der Preis für das große Einfamilienhaus "STREIF Passiv" in der Ausstattungsvariante "Fast Fertig Plus" beträgt 467.205 EUR. In diesem Angebot sind bereits die Elektroinstallation, Heizung, Estrich sowie die Bäder mit Sanitärobjekten und Fliesen enthalten. Lediglich die Maler- und Tapezierarbeiten, die Spachtelung der Gipsfaserplatten sowie die Beschaffung und der Einbau der Bodenbeläge und Innentüren liegen in Ihrer Verantwortung.

Insgesamt ergibt sich somit ein äußerst attraktiver Gesamtpreis für das Grundstück und das Haus von 866.205 EUR. Nutzen Sie diese einmalige Gelegenheit, Ihr Traumhaus in einer hervorragenden Lage zu realisieren!

Ausstattung

Wenn Sie sich für das STREIF-Haus entscheiden sind folgende Ausstattungsmerkmale im Leistungs- & Lieferumfang "STREIF Passiv" enthalten:

  • Ausführung als Effizienzhaus 40
  • Energiebedarf wird zu mindestens 55% aus erneuerbaren Energien erreicht
  • Die STREIF-Außenwand entspricht den Anforderungen an eine Passivhaus-Außenwand
  • Die Fundamentplatte erhält eine Mehrspartenhauseinführung
  • Perimeterdämmung 100 mm gemäß energetischer Berechnung unter der Fundamentplatte
  • Die Fenster bestehen aus einer Dreischeiben-Wärmeschutzverglasung mit einem außergewöhnlich guten Uw- Wert von 0,82 W/m² K
  • Die Dachkonstruktion ist für eine erhöhte Schneelast ausgelegt
  • Die Dachneigung beträgt 24°
  • Der Kniestock hat eine Höhe von 2030 mm
  • Die Außenwandstärke beträgt 290 mm
  • Alle Fenster sind mit elektrisch bedienbaren Rollläden

ausgestattet

  • Die Haustüre ist mit einer 3-fach Wärmeschutz-Isolierverglasung und einer 5-fach Sicherheitsverriegelung versehen

Sonstiges

Wir freuen uns, Ihnen dieses Objekt bei einem Besichtigungstermin ausführlich vorzustellen. Aus rechtlichen Gründen bitten wir Sie, für Ihre erste Kontaktaufnahme mit uns das Kontaktformular des Portals zu nutzen, auf dem Sie diese Immobilie gefunden haben. Finestep bietet dieses Objekt provisionspflichtig zum Kauf an. Für die vom Eigentümer übernommenen Objektdaten übernimmt Finestep keine Gewähr in Bezug auf die Vollständigkeit, Richtigkeit und Aktualität dieser Informationen. Irrtum und Zwischenverkauf ist vorbehalten. Die Käuferprovision in Höhe von 3,57% inkl. 19% USt. auf den Grundstücksanteil ist verdient und fällig mit Beurkundung des notariellen Kaufvertrages. Ist Ihnen das von Finestep nachgewiesene Objekt bereits bekannt, ist dies Finestep schriftlich spätestens innerhalb von fünf Werktagen unter Nennung der Quelle und des Nachweisdatums mitzuteilen. Sämtliche Unterschriften und Mitteilungen haben auch bei Übermittlung per Telefax und E-Mail Ihre Rechtsgültigkeit. Als Gerichtsstand wird München vereinbart sowie die Anwendung Deutschen Rechts. Alle Angaben nach bestem Wissen und nach Angabe des Verkäufers. Irrtum und Zwischenverkauf vorbehalten. Dieses Exposé ist eine Vorabinformation, als Rechtsgrundlage gilt allein der notariell abgeschlossene Kaufvertrag Finestep Immobilien GmbH Humboldtstr. 8 81543 München http://www.finestep.de

Kontaktdaten

Hartmut Gralow, Finestep Immobilien GmbH
Immobiliendaten-Import und Darstellung für WordPress: WP-ImmoMakler®

Unsere Finanzierungspartner helfen Ihnen Ihr Wunschobjekt zu finanzieren.

Energieeffizient Bauen und Sanieren

Ob Haus oder Wohnung, Bau oder Kauf: Wir unterstützen Sie auf dem Weg in die eigenen vier Wände.

Ihr Spezialist für Baufinanzierung

Wir vergleichen für Sie über 400 Banken und Bausparkassen und bieten Ihnen die besten Konditionen für eine optimale Finanzierung.

Genau mein Zuhause

Individuell, effizient und hochwertig – Hanse Haus baut dank zahlreichen Planungs- und Ausstattungsoptionen genau Ihr Zuhause.

Objekte in der Region München und Südostoberbayern zum Kauf

Immobilienangebote speziell für die Region

Als Immobilienmakler für die Region München und Südostoberbayern bedienen wir speziell Stadt und Landkreis München, Wasserburg am Inn und den Landkreis Rosenheim. Informieren Sie sich über unsere regionenspezifischen Angebote!